首    页
 
公司简介
 
产品集锦
 
产品目录
 
联系我们
 
电子邮局
 

全封闭液动插板阀
FCF744X-0.5/1/2.5

一、结构简图
二、阀门组成及动作原理
  液动全封闭插板阀由主副阀体、阀板、伸缩节、固定套、弹簧复位缸夹紧机构、液压马达、液压站、限位器、左、右阀体等部件组成。关阀:启动液压站驱动弹簧复位缸,密封副脱开,到位后,液压马达动作,阀板行走由开到关,到位后,液压马达停止动作,弹簧复位缸卸油,夹紧机构自动夹紧到位,关阀结束。开阀则反之。
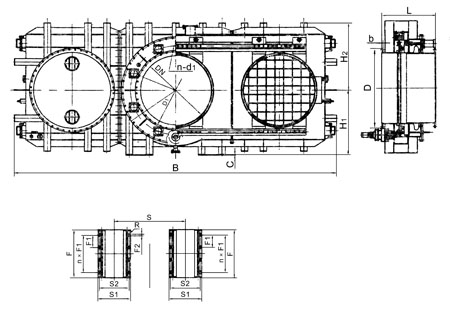
三、主要外形及连接尺寸
  注:根据用户需要配套提供电控箱、液压站,可实现阀门程序动作并与计算机联网,但须在合同中注明。





首 页 | 公司简介 | 产品集锦 | 产品目录 | 联系我们 | 电子邮局
Copyright @ 启东市焦化阀门制造有限公司 2008-2010 all rights reserved 地址:江苏省启东市汇龙工业园区兴龙路1号 邮编:226200
电话:0513-83632353 83639822 83639833 传真:0513-83632353 83639833 Email:office@jiaohua-valve.com