|
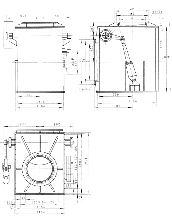
电动三通切换阀主要尺寸(mm)
|
配用电动推杆主要参数
|
参考
总量
kg
|
型号
|
公称通住
|
D
|
D1
|
D2
|
Φ
|
Φ1
|
Φ2
|
H1
|
H
|
n1—d1
|
n2—d2
|
电动推杆型号
|
电动推杆用电机
|
行程开关型号
|
型号
|
功率KW
|
DSFⅠ
|
1600×1300
|
880
|
980
|
1070
|
660
|
730
|
780
|
1750
|
1850
|
24-Φ18
|
20-Φ18
|
DG100060K—C
|
Y90L-2
|
2.2
|
3SE3-
120-1G
|
3080
|
Φ880×Φ660
|
DSFⅡ
|
1600×1300
|
1120
|
1220
|
1275
|
820
|
920
|
975
|
1850
|
1950
|
32-Φ30
|
24-Φ30
|
DG200060K—C
|
Y100L-2
|
3.0
|
3SE3-
120-1G
|
3380
|
Φ1120×Φ820
|
配用气缸主要参数
|
气动三通切换阀主要尺寸(mm)
|
参考
总量
kg
|
型号
|
公称通径
|
D
|
D1
|
D2
|
Φ
|
Φ1
|
Φ2
|
H1
|
H
|
n1—d1
|
n2—d2
|
气缸型号
|
推力N
|
行程mm
|
阀体自带
行程开关
|
QSFⅠ
|
1600×1300
|
880
|
980
|
1070
|
880
|
980
|
1070
|
1750
|
1850
|
24-Φ18
|
20-Φ18
|
JBa200×400-S
|
12560
|
400
|
3SF3
120-1G
|
3040
|
Φ880×Φ880
|
QSFⅡ
|
1600×1300
|
1120
|
1220
|
1275
|
820
|
920
|
975
|
1850
|
1950
|
32-Φ30
|
24-Φ30
|
JBa200×400-S
|
19625
|
400
|
3SE3
120-1G
|
3280
|
Φ1120×Φ820
|
注:如选用QSF—Ⅰ、Ⅱ型阀时,气动控制装置上带有双控二位四通电磁气阀
Q24J0225、电压220V、功率0.15KWc
五、DSF、QSF型三通切换阀结构简图及外形尺寸

|