|
|
 |
 |
| |
调压阀组
|
一、用途
TYFZ型调压阀组适用于冶炬高炉系统,通过对气体介质流量调节来保证炉顶压力稳定在一事实上范围内。安装于除尘装置(间断式除尘或干式除尘)之后的;争煤气管道上。也适用于其它需要通过流量、压力调节保持稳定生的的气体介质管足各系统。 |
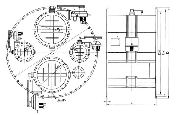
| 二、结构简图 |
|
| 三、主要性能参数 |
公称通径 |
型号 |
介质压力 |
介质温度 |
介质流量(NM3/h) |
阀门转角 |
1600 |
TYFZ-I |
≤0.25MPa |
≤250℃ |
-42000 |
90° |
TYFZ-II |
42000-55000 |
1800 |
TYFZ-I |
68000-85000 |
TYFZ-II |
48000-58000 |
2000 |
TYFZ-I |
110000-130000 |
TYFZ-II |
90000-1150000 |
2150 |
TYFZ-I |
128000-135000 |
TYFZ-II |
115000-130000 |
2200 |
TYFZ-I |
135000-160000 |
2400 |
TYFZ-I |
-170000 |
执行机构参数
公称通径DN |
执行机构 |
输入电流信号mA |
启闭时间
单程(90°)(S) |
型号 |
电压V |
250-350 |
ZKJ-310C |
220 |
4-20 |
25 |
400-500 |
ZKJ-410C |
600-900 |
ZKJ-510C |
1000 |
ZKJ-610C |
四、结构特点
TYFZ型调压阀组由ZAJW-1型自动调节蝶阀及常通管组成。在使用中一般用一台ZAJW-1型自动调节蝶通过DDZ型电动单元组合仪表进行自动控制,其余二台(或三台)ZAJW-1型自动调节阀由阀门配制的DKJ电动执行器通过仪表盘上的搬运操作器控制进行精调,以达到对系统流量和压力之调节。
本阀组安装在水平管道上时无方向要求,但常通管应置于阀组下方,以保证在系统温度下降时冷凝水的排出。安装在垂直管足各上时应考虑电动执行器的工作位置。
五、主要零件材料
零件名称 |
阀体 |
蝶板 |
阀杆 |
连接筒 |
大小法兰 |
密封垫 |
材料 |
碳素钢 |
碳素钢 |
优质碳素钢 |
碳素钢 |
碳素钢 |
石棉橡胶 |
六、主要外形尺寸、连接尺寸及重量
公称通径 |
型号 |
L |
D |
D1 |
D2 |
n-do |
b |
DN1 |
DN2 |
DN3 |
DN4 |
重量kg |
1600 |
TYFZ-I |
900 |
1790 |
1730 |
1690 |
40-30 |
26 |
600 |
500 |
300 |
- |
2580 |
TYFZ-II |
900 |
1790 |
1730 |
1690 |
40-30 |
28 |
600×2 |
300 |
- |
- |
2610 |
1800 |
TYFZ-I |
900 |
1990 |
1930 |
1890 |
44-30 |
30 |
700×2 |
350 |
- |
175 |
3900 |
TYFZ-II |
1004 |
1990 |
1930 |
1890 |
44-30 |
30 |
600×2 |
300 |
- |
119 |
3400 |
2000 |
TYFZ-I |
900 |
2190 |
2130 |
2090 |
48-30 |
32 |
700×3 |
350 |
- |
170 |
4800 |
TYFZ-II |
900 |
2190 |
2130 |
2250 |
48-30 |
32 |
700×3 |
- |
- |
- |
4200 |
2150 |
TYFZ-I |
900 |
2355 |
2290 |
2250 |
52-33 |
30 |
800×2 |
450 |
- |
200 |
5850 |
TYFZ-II |
900 |
2355 |
2290 |
2250 |
52-33 |
30 |
750×2 |
450 |
- |
200 |
5600 |
2200 |
TYFZ-I |
1200 |
2405 |
2340 |
2295 |
52-33 |
30 |
900×2 |
500 |
- |
200 |
6740 |
2400 |
TYFZ-I |
900 |
2605 |
2540 |
2495 |
56-33 |
46 |
750×2 |
500×2 |
- |
- |
10800 |
|
|
|
|